Ingeniería sísmica, núm. 114, 2025
Sociedad Mexicana de Ingeniería Sísmica A.C.
José A. Rodríguez-Morales JRodriguezM@iingen.unam.mx
Universidad Nacional Autónoma de México, Mexico
Sonia E. Ruiz-Gómez *
Universidad Nacional Autónoma de México, Mexico
Recibido: 22 enero 2025
Aceptado: 17 junio 2025
DOI: 10.18867/ris.114.683
Financiamiento
Fuente: ISCDF
Nº de contrato: ISCDF/CEC-04/2025-18
Resumen.: Se presenta una metodología para determinar la distorsión máxima de entrepiso (δOI) óptima que garantice el cumplimiento del nivel de desempeño de Ocupación Inmediata (OI), requisito para las estructuras importantes (Grupo A) de acuerdo con la Norma Técnica Complementaria para Diseño por Sismo (NTC-DS-2023). La metodología se desarrolla en dos etapas: en la primera, se determina la tasa de excedencia de la respuesta estructural mediante la integración de curvas de fragilidad estructural con la tasa de excedencia de intensidades sísmicas del sitio. En la segunda, se evalúa el costo total esperado durante el ciclo de vida del edificio, mediante simulación numérica, con énfasis en las pérdidas económicas por daños en contenidos sensibles a aceleración de piso. Para realizar esta evaluación, se propone una función de costos por daño en contenidos que considera la aceleración máxima de piso y su variación a lo largo de la altura del edificio, formulándose primeramente a nivel de inventario, y posteriormente, a nivel global. La metodología se aplica a un edificio escolar de cinco niveles con marcos resistentes a momento, de concreto reforzado, ubicado en la zona de transición de la Ciudad de México. Para el diseño de la estructura se suponen cuatro valores permisibles de δOI = 0.005, 0.0075, 0.01 y 0.0125. Se obtiene que la distorsión máxima de entrepiso correspondiente al mínimo costo total esperado es igual a 0.01, valor que es mayor al límite especificado por la NTC-DS-2023, el cual es igual a 0.0075 para marcos de concreto reforzado.
Palabras clave: distorsión máxima permisible de entrepiso, distorsión de diseño óptima, daño en contenidos, edificios escolares, costo total esperado, ciclo de vida.
Abstract.: A methodology is presented to determine the optimal value of the maximum interstory drift (δOI) that ensures compliance with the Immediate Occupancy (IO) performance level, a requirement for essential structures (Group A) according to the Complementary Technical Norm for Seismic Design (NTC-DS-2023). The methodology is developed in two stages: in the first, the exceedance rate of the structural response is determined by integrating structural fragility curves with the seismic intensity exceedance rate at the site. In the second stage, the total expected cost during the building's lifecycle is evaluated through numerical simulation, with emphasis on economic losses due to damage corresponding to acceleration-sensitive contents. To perform this evaluation, a cost function for content damage is proposed, which considers the maximum floor acceleration and its variation along the building’s height. This function is first formulated at the inventory level and later at the global level. The methodology is applied to a five-story school building constituted by reinforced concrete moment-resisting frames, located in the transition zone of Mexico City. For the structural design four permissible values of δOI are assumed: 0.005, 0.0075, 0.01, and 0.0125. It is found that the maximum interstory drift corresponding to the minimum expected total cost is 0.01, value that exceeds the limit specified by NTC-DS-2023, which is 0.0075 for reinforced concrete frames.
Keywords: tolerable maximum drift, optimal design drift, content damage, school buildings, expected total cost, life-cycle.
INTRODUCCIÓN
La ingeniería sísmica afronta el desafío constante de garantizar la seguridad y funcionalidad de estructuras importantes ante eventos sísmicos de gran intensidad. Las experiencias derivadas de sismos devastadores, junto con los continuos avances en investigación, impulsan la actualización sistemática de los códigos de diseño estructural para incrementar la resiliencia y protección de las edificaciones. Los más recientes lineamientos de diseño sísmico de la Ciudad de México (NTC-DS) ha experimentado un cambio significativo en su versión 2023 (Gaceta de la Ciudad de la Ciudad de México, 2023), donde se introducen modificaciones en la filosofía de diseño para estructuras esenciales. Este nuevo enfoque contrasta notablemente con la versión 2020 (Gaceta Oficial de la Ciudad de México, 2020) en la cual el diseño de estructuras esenciales se realizaba empleando un factor de importancia que incrementaba 1.5 o 1.3 veces las ordenadas del espectro de diseño, el cual se reducía mediante factores asociados a la ductilidad y sobre-resistencia estructural, siguiendo el enfoque tradicional ampliamente utilizado en diversos códigos internacionales (The European Union per Regulation 305/2011, 2004) (American Society of Civil Engineers, 2021). La actual normativa mexicana NTC-DS-2023 elimina el uso del factor de importancia y establece que las estructuras deben satisfacer el nivel de desempeño de Ocupación Inmediata (OI), así como un nivel de Seguridad de Vida (SV). El nivel OI, que generalmente rige el diseño, busca minimizar el daño estructural mediante dos estrategias fundamentales: el control de la distorsión máxima de entrepiso, y la utilización de un espectro de diseño sísmico asociado a un periodo de retorno de al menos 250 años. Este espectro se reduce posteriormente únicamente por una fracción de la sobre-resistencia. La normativa NTC-DS-2023 establece que la distorsión de diseño para el cumplimiento del nivel de desempeño de OI (δOI) debe limitarse a valores de 0.0075 o 0.005, según el sistema estructural empleado; sin embargo, no hay investigaciones que fundamenten la selección de estos valores límite. Para el nivel de desempeño SV se utiliza un periodo de retorno de 450 años.
Los eventos sísmicos recientes, incluyendo los ocurridos en Nepal (2015), Italia (2016), México (2017) y Turquía (2023) (Chen et al., 2015; Di Ludovico et al., 2019; Di Ludovico et al., 2019; Singh et al., 2018) han evidenciado la particular vulnerabilidad de las infraestructuras educativas ante desastres naturales, impulsando investigaciones orientadas a mejorar su resiliencia. Las escuelas trascienden su función educativa primaria al convertirse en refugios temporales y centros comunitarios durante emergencias, lo que enfatiza la importancia crítica de implementar estrategias efectivas para la mitigación de daños y reducción de riesgos (De León y Donaji, 2020). En respuesta a esta necesidad, la comunidad científica ha desarrollado diversos enfoques de investigación.
El análisis costo-beneficio ha sido uno de los enfoques más desarrollados para determinar estrategias óptimas de mitigación (Jaimes y Niño, 2017), el cual se ha complementado con la implementación de metodologías de resiliencia basadas en modelos como el incluido en el FEMA P-58 (Koohfallah et al., 2024) y el desarrollo de técnicas de rehabilitación adaptadas a condiciones locales específicas (Anelli, Santa-Cruz, Vona, Tarque, y Laterza, 2018) (De León et al., 2023) (De León y Donaji, 2020) (De León y Garcia-Manjarrez, 2021). La evolución natural de estos métodos ha llevado a la incorporación de herramientas innovadoras, particularmente las técnicas de inteligencia artificial, que permiten optimizar tanto los análisis costo-beneficio como la implementación de las metodologías de resiliencia (Zain, Dackermann, y Prasittisopin, 2024).
Por otro lado, la optimización de parámetros de diseño sísmico ha evolucionado significativamente desde los trabajos pioneros (Rosenblueth y Mendoza, 1971) (Hasofer, 1973) (Liu, Dougherty, y Neghabat, 1976) que introdujeron los primeros modelos de optimización durante el ciclo de vida estructural. Investigaciones posteriores han incorporado consideraciones adicionales como costos asociados a que el sistema estructural no falle (Esteva, 1968) (Rosenblueth, 1976), objetivos de confiabilidad enfocada a códigos de diseño (Rackwitz, 2000), acumulación de daño (Alamilla y Tolentino, 2018) e información sísmica detallada (Goda y Hong, 2006), culminando en aplicaciones prácticas para la determinación de coeficientes sísmicos de diseño (García-Pérez, Castellanos, y Díaz, 2005) (García-Pérez y Riaño, 2016; Hosseini Varzandeh y Mahsuli, 2023) (Ordaz, Salgado-Gálvez, Pérez-Rocha, Cardona, y Mena-Hernández, 2017), factores de carga (Orellana, Ruiz, Bojórquez, Reyes-Salazar, y Bojórquez, 2021), y propiedades estructurales óptimas (Esteva, Díaz, García-Pérez, Sierra, y Ismael, 2002).
Con respecto a la distorsión máxima de entrepiso óptima, las primeras investigaciones se centraban únicamente en minimizar el uso de materiales de construcción mientras se cumplían los requisitos de desempeño (Park y Kwon, 2003; Zou y Chan, 2005; Zou y Chan, 2005). Posteriormente, surgieron enfoques que emplean optimización multiobjetivo (Bojórquez et al., 2018; Dong et al., 2023; Kaveh et al., 2015) usando metodologías que emplean técnicas de inteligencia artificial. Estos métodos en general se han enfocado en optimizar la distorsión máxima tolerable de entrepiso para un nivel de desempeño que permite comportamiento no lineal de la estructura durante sismos intensos, mientras que la nueva normativa mexicana requiere que la estructura presente un comportamiento elástico para satisfacer el nivel de desempeño OI, por lo que es necesario realizar estudios orientados a encontrar la distorsión máxima permisible de entrepiso correspondiente a δOI. Se hace notar que el mantener la distorsión δOI dentro de los límites elásticos durante un evento sísmico limita el daño en los elementos estructurales; sin embargo, esto no garantiza la protección de los contenidos sensibles a otras medidas de intensidad sísmica, como la velocidad o la aceleración de piso. Esta limitación resulta particularmente significativa, pues el daño a dichos contenidos podría comprometer la operatividad de la estructura (Hutchinson y Chaudhuri, 2006), incluso si los elementos estructurales permanecen intactos.
El presente artículo presenta una metodología de optimización para determinar la distorsión máxima de entrepiso de diseño que minimice el costo total esperado durante la vida útil de una estructura. Para ello, se emplea un modelo de optimización aplicado a un conjunto de edificios de uso escolar diseñados para satisfacer diferentes valores de δOI. La evaluación de cada estructura se realiza mediante un análisis de costos a lo largo del ciclo de vida de la estructura, considerando escenarios sísmicos representativos del sitio donde se ubican los edificios, y cuantificando las pérdidas económicas derivadas de los daños en sus contenidos.
METODOLOGÍA
El análisis se divide en dos etapas, como se ilustra en el diagrama de bloques de la figura 1. La primera etapa comprende el cálculo de la tasa de excedencia de la respuesta estructural ν(d), integrando la fragilidad estructural con el peligro sísmico del sitio donde se ubica la estructura. La segunda etapa se centra en la evaluación del costo total esperado, considerando tanto los costos iniciales de diseño y construcción, como los costos por daños y reparaciones asociados a distintos eventos sísmicos a los que se verá sujeta la estructura durante su vida útil. Finalmente, se determina la distorsión óptima de diseño, δ O I p o t definida como aquella que resulta en el menor costo total esperado. A continuación, se detallan cada una de estas etapas.

Tasa de excedencia de respuesta estructural (Etapa 1)
La tasa de excedencia de la respuesta estructural indica el número medio de eventos por unidad de tiempo en los que la respuesta alcanza o supera cierto umbral. Se puede calcular combinando las funciones de fragilidad de la estructura con la tasa de excedencia de intensidades sísmicas del sitio en cuestión (Esteva, 1968), mediante la ecuación 1.
donde: P D < d | Y = y es la probabilidad de que la respuesta D sea mayor a un umbral d, dada una intensidad sísmica y ; ν ' y es el valor absoluto de la derivada de la tasa de excedencia de intensidades sísmicas; y 0 es la intensidad mínima considerada, y y 1 es la intensidad máxima considerada. La estimación de P D < d | Y = y , se realiza suponiendo que la respuesta estructural dada una intensidad sigue una distribución de probabilidad tipo log-normal, y que su distribución de probabilidad acumulada está dada por la ecuación 2.
donde μ l n es la media del logaritmo natural de la respuesta estructural dada una intensidad y ; σ l n es la media del logaritmo natural de la respuesta estructural dada una intensidad y ; y Φ es la función de probabilidad acumulada normal estándar. Los parámetros μ l n y σ l n se obtienen de Análisis Dinámicos Incrementales (ADI) (Vamvatsikos y Cornell, 2011). Como medida de intensidad sísmica y aquí se utiliza la aceleración espectral asociada al periodo fundamental de vibración de la estructura; sin embargo, es posible utilizar otras medidas de intensidad más elaboradas (Baker y Cornell, 2005; Bojórquez et al., 2012). En cuanto a la respuesta estructural d , aquí se evalúa tanto la aceleración máxima de entrepiso y a , debido a que la mayoría de los contenidos son sensibles a esta medida; como la distorsión máxima de entrepiso ( d δ ), debido a que es un claro indicador del daño en elementos estructurales.
Análisis de costos durante la vida útil (Etapa 2)
La segunda fase de la metodología consiste en asociar las respuestas estructurales que la edificación puede experimentar durante su vida útil con los costos de reparación, las afectaciones a personas lesionadas y los daños en contenidos. En primer lugar, a partir del método de simulación de Monte Carlo (Rubinstein y Kroese, 1981), se construye una serie de respuestas estructurales a lo largo del ciclo de vida de la estructura. Los pasos para llevar a cabo la simulación de las respuestas estructurales se describen a continuación:
. Se calculan las funciones de probabilidades acumulada de dδ y ya, empleando la ecuación 3.
donde ν0 es la tasa asociada a una respuesta mínima.
. Se construye una historia de distorsiones de entrepiso y aceleraciones de piso a partir del método de la transformación inversa, el cual permite generar una variable aleatoria a partir de su función de probabilidad acumulada y una distribución uniforme.
. Se simulan los tiempos entre eventos (Ti). Aquí se supone que estos siguen una distribución exponencial, con parámetro λ igual a ν0 (ver ecuación 4). Para este análisis se considera que la suma de espera entre eventos sea muy cercana a una vida útil de la estructura, la cual aquí se supone igual a 80 años.
donde u es un valor simulado entre 0 y 1, con una distribución uniforme.
. Dado que la mayoría de los costos futuros están relacionados con el daño estructural, se calcula el índice de daño Id, definido en la ecuación 5 (Tolentino y Ruiz, 2015). El valor de Id se calcula para cada distorsión simulada a lo largo del ciclo de vida de la estructura.
donde d δ es la distorsión simulada; d y es la distorsión asociada a la fluencia de la estructura y d u es la distorsión asociada a la falla de la estructura.
El costo total, C T δ O I , durante el ciclo de vida de la estructura aquí se calcula considerando el costo inicial C 0 δ O I , costo por reparación o reconstrucción C R R δ O I , costo por personas lesionadas C P L δ O I , y costo por daño en contenidos C C δ O I ; sin embargo, dado que la presente investigación se centra específicamente en las pérdidas asociadas al daño en contenidos sensibles a la aceleración, no se considera el costo de los elementos estructurales dentro del análisis de pérdidas.
Si bien el nivel de desempeño de OI proporciona una resistencia considerable, lo que sugiere costos reducidos tanto en elementos estructurales como en lesiones personales, estos componentes se mantienen en el análisis con el fin de considerar todos los escenarios posibles de pérdida. Estos términos, definidos como funciones de δ O I , se integran en la ecuación 6 para proporcionar una representación cuantitativa del C T δ O I , como sigue:
A partir de la historia de aceleraciones e índice de daño se calculan los costos asociados a la reparación estructural, personas lesionadas, personas fallecidas y el daño en contenidos. Estas funciones de costos se detallas en la siguiente sección. El costo correspondiente a cada respuesta simulada debe trasladarse a valor presente utilizando la ecuación 7. El proceso de simulación de historias de respuestas estructurales se repite un número significativo de veces, k , y el valor esperado del costo total, E C T δ O I , se calcula como el valor esperado de los costos totales obtenidos en cada simulación para la distorsión de diseño seleccionada C T δ O I i (ecuación 8). La distorsión máxima permisible de entrepiso óptima corresponde a aquella en el que el valor de E C T δ O I es mínimo.
donde V P es el valor presente; V F es el valor futuro; n es el tiempo a futuro y γ es la tasa de descuento; en este estudio se supone igual a 5 %.
FUNCIONES DE COSTOS
Las funciones de costo utilizadas para la estimación del costo total esperado tienen como objetivo asociar la respuesta estructural, ya sea en términos de aceleración de piso o de distorsión de entrepiso, con los costos asociados a tal respuesta. Estas funciones se describen a continuación.
Costo inicial C 0 (δ OI )
Debido a los diferentes niveles de rigidez demandadas por cada uno de los valores supuestos de δ O I , las estructuras diseñadas presentan diferentes secciones estructurales, por lo que el costo inicial C 0 δ O I se estima como 1.93 veces el costo directo de los materiales (ver ecuación 9), C M , empleados en los elementos estructurales (Bojórquez et al., 2017). Este factor incluye no solo el costo indirecto asociado a los materiales, sino también los costos de mano de obra y los honorarios del constructor. Esta aproximación permite obtener una valoración económica razonable del costo total de construcción en etapas tempranas del diseño, facilitando comparaciones entre distintas alternativas estructurales, sin necesidad de un presupuesto detallado.
Costo reparación/reconstrucción C RR (δ OI )
Cuando una estructura experimenta un índice de daño mayor a 0.7, es muy difícil poder rehabilitarla (Tolentino y Ruiz, 2015), como consecuencia el costo por reparación es el costo inicial más los costos por demolición y limpieza. Por ello se emplean las ecuaciones 10 y 11 para el cálculo del costo de reparación o reconstrucción como función del índice de daño, I d (De León, 1996).
Costo por personas lesionadas C PL (δ OI )
El costo máximo por personas lesionadas se calcula siguiendo el enfoque propuesto por (De León, 1996), donde se estima el número medio de personas lesionadas por unidad de área resultado del sismo del 19 de septiembre de 1985, y se propone una variación cuadrática del costo en función del índice de daño.
donde A T es el área colapsada; C L I es el costo por lesiones con incapacidad igual a $3,900,000.0 ($190,562.85 USD) y C L S es el costo por lesiones sin incapacidad igual a $23,000.0 ($1,123.83 USD).
Costo por daño en contenidos C C (δ OI )
El costo por daño en contenidos depende principalmente del uso de la estructura. A continuación, se presenta una metodología para construir una función de costos total, que en parte se basa en las referencias (Reinoso, Jaimes, y Esteva, 2010) (Jaimes, Reinoso, y Esteva, 2013) (Jaimes y Reinoso, 2013).
Estimación de pérdidas por daño en inventarios escolares
El término “inventario” utilizado en esta sección se refiere al conjunto de componentes utilizados para cumplir las funciones de un uso específico. La manera en que un componente puede dañarse es que éste se voltee o se deslice lo suficiente para golpearse o caerse. El volteo o deslizamiento de un objeto no implica necesariamente su reemplazo, por lo que la pérdida asociada por daño dado una intensidad depende de la fragilidad del componente que se esté estudiando. Con base en esta consideración, se puede calcular el costo por daño en un elemento i del inventario, C R i , mediante la ecuación 14.
donde C 0 i es el costo de reemplazo del componente, D i es la fragilidad del componente, X i es una variable aleatoria que toma el valor de 1 cuando el contenido se voltea o desliza lo suficiente para dañarse, y 0 cuando no ocurre lo anterior, y es función de la aceleración de piso y a .
Por lo tanto, el valor esperado de C R i , dada una intensidad y a , se calcula mediante la ecuación 15.
El valor esperado del costo por daño del inventario se obtiene al sumar todos los componentes del inventario (ecuación 16):
donde E C R R | y a es el valor esperado del costo por daño en contenidos, y N es el número de componentes del inventario.
Para estimar la probabilidad de volteo o deslizamiento X i de un componente ante un nivel de aceleración de piso y a , se sigue una metodología que inicia con la construcción de un modelo numérico en el programa OpenSees (McKenna, Fenves, y Scott, 2000). El modelo considera la geometría, masa y coeficiente de fricción del componente, empleando elementos rígidos “corotTruss” para el contenido, apoyos modelados como resortes compresivos con material “Elastic ETN” y fricción representada mediante un material elastoplástico que fluye al alcanzar la fuerza máxima W ∙ μ (ver figura 2a). Este modelo se somete a una aceleración incremental para determinar su respuesta máxima, obteniendo así la curva fuerza-desplazamiento del contenido. La representación de cada objeto podría realizarse mediante modelos más simplificados (por ejemplo, mediante formas prismáticas); sin embargo, para mayor claridad, en el presente estudio se decidió representarlo de forma detallada, como se muestra, por ejemplo, en la figura 2a. Posteriormente, se desarrolla un modelo simplificado de un grado de libertad (ver figura 3), sobre el cual se realizan ADI para identificar la aceleración que provoca el volteo o deslizamiento. Finalmente, con los resultados obtenidos, se construye la función de probabilidad X i para distintos niveles de y a . Se observa que la forma de la relación fuerza-desplazamiento de la figura 2b es similar a las que se presentan en (Liu, Huang, y Qu, 2022) (Liu, Huang, y Liu, 2023) (Lu, Zhan, Qiu, y Wu, 2023).


La metodología anterior estima el costo por daño en contenidos de un inventario específico, considerando la aceleración del piso donde se ubica. Se debe considerar que un edificio presenta aceleraciones diferentes en cada nivel, debido a su respuesta dinámica y, además, los pisos pueden tener usos e inventarios distintos.
Para estimar la pérdida económica total, es necesario calcular la distribución de la Aceleración Máxima de Piso (AMP) en función de la altura del edificio. Los códigos de diseño sísmico, como la NTC-DS-2023, proporcionan ecuaciones para estimar la AMP a partir de la Aceleración Máxima del Terreno (AMT), con enfoques simplificados (ecuación 17) o más elaborados (ecuación 18).
donde a 1 es la ordenada del espectro elástico de diseño para el periodo fundamental del sistema; a n j es la aceleración absoluta del centro de masa asociada a la respuesta dinámica lineal el j-ésimo modo de vibrar, n es el número de niveles; Q ' es el factor de reducción por ductilidad; λ p es un factor de penalización por irregularidad.
En la sección 2.2 se mencionó que el parámetro de respuesta para estimar la pérdida por daño en contenidos es la aceleración máxima de piso, la cual, en edificios de mediana altura, generalmente se presenta en el nivel de azotea. Esto significa que la aceleración en los pisos inferiores, asociada a la aceleración máxima de piso, se verá modificada, afectando el daño en los inventarios de esos niveles.
Para construir una función de costo total, es necesario conocer cómo varía la aceleración de piso entre niveles. Si se define E C R i j y j como el valor esperado del costo por daño en un inventario i , dado una aceleración de piso y j , ubicado en el entrepiso j , y un factor Ω j que convierte la aceleración máxima de piso a la aceleración máxima del entrepiso j , entonces, el valor esperado del costo por daño total, considerando los diferentes inventarios, y que estos se encuentren en diferentes entrepisos, se calcula con la siguiente ecuación:
donde y m a x , j es la aceleración máxima del piso j; N p número de pisos y N i número de inventarios en cada entrepiso j .
CASO DE ESTUDIO
Descripción de los edificios analizados
La mayoría de las estructuras dañadas en la Ciudad de México por el sismo del 19 de septiembre de 2017 estaban ubicadas en la zona de transición, llamada así porque está localizada entre terreno firme y suelo muy blando. El edificio de estudio se supone desplantado en dicha zona. Se trata de un edificio esencial para uso escolar de baja altura (cinco niveles) constituido a base de marcos concreto reforzado. La estructura es regular y posee tres crujías en ambas direcciones, con una distancia de 8m, la altura de entrepiso es de 4 m. La geometría del edificio se muestra en la figura 4. El diseño considera una resistencia a la compresión del concreto de 300 kg/cm², un esfuerzo a la fluencia del acero de refuerzo de 4,200 kg/cm². La normativa mexicana NTC-DS-2023 establece que para el cumplimiento del nivel de desempeño de OI debe emplearse un espectro de diseño, usando un factor Q (este factor considera la capacidad de deformación del sistema estructural) igual a 1, y un factor de sobre-resistencia R T reducido al 75 %. La metodología se aplica suponiendo cuatro diferentes valores de δ O I = 0.005, 0.0075, 0.01 y 0.0125. El espectro de diseño asociado al nivel de desempeño de OI se presenta en la figura 5. Con línea continua se presenta el espectro elástico y con línea discontinua, el espectro reducido por ductilidad y sobre-resistencia. Los espectros se obtuvieron mediante el software Sistema de Acciones Sísmicas de Diseño (SASID-2023).


Los edificios se describen como E-1, E-2, E-3 y E-4, según los valores de δ O I considerados en el estudio. El edificio E-1 se asocia a una distorsión de 0.005, el edificio E-2 a 0.0075, el edificio E-3 a 0.0100 y el edificio E-4 a 0.0125.
Costo inicial
El costo unitario inicial se estima a partir de los principales conceptos de obra que se presentan en la tabla 1, los cuales se obtuvieron del Tabulador General de Precios Unitarios 2023 de la Ciudad de México.
| Concepto | Unidad | Costo unitario (MNX) | Costo unitario (USD) |
| Concreto | m³ | $ 3,654.48 | $ 176.44 |
| Acero refuerzo | t | $ 32,559.44 | $ 1,571.97 |
| Cimbra | m² | $ 235.78 | $ 11.68 |
Modelado no lineal
La respuesta inelástica, que ocurre a altas intensidades sísmicas, se obtiene mediante el uso del programa OpenSees (McKenna, Fenves, y Scott, 2000), utilizando el enfoque de plasticidad concentrada. Tanto las trabes como las columnas se modelan con elementos elásticos con resortes a flexión en los extremos, cuyo comportamiento se describe mediante relaciones momento-rotación, modeladas de acuerdo con (NIST/ATC, 2017; Gaceta Oficial de la Ciudad de México, 2023). Para incorporar la degradación cíclica de la resistencia y rigidez, estas relaciones momento-rotación se modelan utilizando el material "Hysteretic" de la Biblioteca del programa OpenSees (Mazzoni, Fenves, y Scott, 2006). Las uniones viga-columna se representan con elementos rígidos y, en cada entrepiso, se considera un diafragma rígido. Se adopta un amortiguamiento crítico del 5% para el primer y tercer modos utilizando el modelo de Rayleigh. Además, se consideran valores medios en la carga viva y muerta, así como los parámetros de las ecuaciones constitutivas del acero y el concreto. El diseño de las estructuras se valida mediante un análisis estático no lineal (AENL). A partir de las curvas de capacidad que se muestran en la figura 6, se observa que las estructuras permanecen elásticas ante el coeficiente sísmico de diseño ( c = 0.5 ), de acuerdo con las NTC-DS-2023, Además, se observan variaciones en la rigidez de las estructuras, resultado de los distintos valores adoptados para la distorsión δ O I . Los periodos fundamentales calculados para cada estructura reflejan estas diferencias en rigidez. El edificio E-1 presenta un periodo fundamental de vibración igual a 0.56 s, el edificio E-2 de 0.61 s, el edificio E-3 de 0.67 s y el edificio E-4 de 0.76 s.

Análisis dinámicos no lineales
Se realizó una serie de análisis dinámicos incrementales (ADI) para cada estructura diseñada, considerando 18 eventos sísmicos registrados en la estación CO47, ubicada muy cerca del sitio de estudio. Estos eventos sísmicos corresponden a magnitudes entre 5.4 y 8.2 M w y distancias epicentrales (R) entre 108 y 737 km. Las características de los eventos sísmicos se describen en la tabla 2, y sus espectros de respuesta de pseudo-aceleración normalizados respecto a la AMS se presentan en la figura 7. En esta última se señalan con líneas verticales los periodos estructurales de interés, donde se observa que el periodo fundamental del sitio es cercano a 0.5 segundos.
| Fecha | Mw | R(km) | Fecha | Mw | R(km) |
| 10/12/1994 | 6.5 | 273.89 | 15/11/2012 | 6.1 | 191.46 |
| 14/09/1995 | 7.3 | 291.00 | 22/04/2013 | 6.0 | 365.46 |
| 11/01/1997 | 7.1 | 377.53 | 16/06/2013 | 5.9 | 140.82 |
| 15/06/1999 | 6.9 | 228.27 | 18/04/2014 | 7.3 | 294.48 |
| 30/09/1999 | 7.5 | 443.69 | 08/05/2014 | 6.5 | 318.79 |
| 21/07/2000 | 6.1 | 147.74 | 20/03/2015 | 5.6 | 176.14 |
| 13/04/2007 | 6.1 | 277.56 | 08/05 2016 | 6.1 | 367.07 |

En la figura 8 se presentan los resultados de los ADI correspondientes a la distorsión máxima de entrepiso (figura 8a), y a la aceleración máxima de piso (figura 8b).

Tasa de excedencia de intensidades sísmicas
Las tasas de excedencia de intensidades sísmicas se obtuvieron de la ecuación 20 (Esteva, 1968), la cual permite estimar la tasa de excedencia de un sitio objetivo ν y , a partir de la tasa de excedencia de un sitio de referencia ν p y y la función de densidad de probabilidad del cociente espectral ε (Alamilla, Rodríguez, y Vai, 2020). Se considera como tasa del sitio de referencia la correspondiente a Ciudad Universitaria; se seleccionó este sitio debido a que es el de mayor tiempo de monitoreo de la Ciudad de México (Singh, Mena, Castro, y Carmona, 1987). Las tasas del sitio de referencia se toman de (Rodríguez, Ruiz, Bojórquez, y Reyes-Salazar, 2020). La tasa de excedencia de intensidades para el caso de estudio E-1 se presenta en la figura 9.

Tasa de excedencia de respuesta estructural
Las tasas de excedencia de la distorsión máxima de entrepiso y de la aceleración máxima de piso, que se presentan en la figura 10, se derivaron de la combinación entre la tasa de excedencia de intensidades sísmicas, representada como ν y , y la respuesta de los ADI, lo que se obtiene de la ecuación 1.

Costo total por daño en contenidos
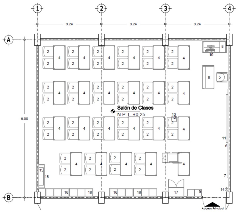
Para el diseño de los espacios y servicios que conforman los planteles educativos se utilizan los criterios normativos elaborados por el Instituto Nacional de la Infraestructura Física y Educativa, (INIFED, 2016). Se considera un inventario correspondiente a un aula de 77.76 m² (ver figura 11). Las características de los contenidos para este inventario se presentan en la tabla 3. El costo esperado por daño en contenidos de este inventario se presenta en la figura 12. Se consideran 5 aulas por nivel. La función del costo total se presenta en la figura 13. El costo total por reemplazo, considerando 25 aulas, asciende a $2,759,025.00 ($133,205.73 USD).
| Equipo | W (kg) | Coeficiente
|
Costo (MNX) | Cantidad | Fragilidad |
| Cubo metálico | 3.0 | 0.3 | $ 2,618.00 | 2 | 0.3 |
| Escritorio metálico | 68.0 | 0.3 | $ 22,500.00 | 1 | 0.3 |
| Sillón giratorio | 19.0 | 0.25 | $ 6,334.00 | 1 | 0.3 |
| Librero | 30.0 | 0.3 | $ 5,027.00 | 2 | 0.5 |
| Pupitre | 6.0 | 0.3 | $ 1,148.00 | 30 | 0.3 |
| CPU | 4.5 | 0.3 | $ 21,999.00 | 1 | 1.0 |
| Monitor | 6.0 | 0.3 | $ 3,199.00 | 1 | 1.0 |
| Impresora | 9.5 | 0.3 | $ 6,599.00 | 1 | 1.0 |
| Costo Total $ 110,361.00
|
Costo Total x Fragilidad $ 57,377.0
|
||||


Estimación del costo total esperado
Siguiendo la metodología propuesta, se utilizan las tasas de excedencia de d δ y y a (figura 10) para calcular las funciones de probabilidad acumulada mediante la ecuación 3 (figura 14). A partir de estas, mediante un proceso de simulación, se genera una secuencia de distorsiones máximas de entrepiso y aceleraciones máximas de piso correspondientes a una vida útil de 80 años. Un ejemplo de una secuencia se muestra en la figura 15.


Se calcula el nivel de daño para cada valor simulado de distorsión utilizando la ecuación 6. Posteriormente, empleando la metodología previamente descrita, se estima el costo por reparación y el número de personas lesionadas. Asimismo, se determina el costo por daño en contenidos mediante la función de costo total desarrollada, considerando los valores simulados de aceleración de piso. El costo total es la suma del costo inicial, costo por daño, costo por personas lesionadas y costo por daño en contenidos. Con el fin de obtener el costo total esperado, el proceso se repite mediante simulación de Monte Carlo. En el presente estudio se emplearon 10,000 simulaciones que representan diferentes escenarios durante el ciclo de vida de la estructura.
La figura 16 muestra el valor esperado del costo total normalizado con respecto al costo inicial, para los casos de estudio E-1, E-2, E-3 y E-4.

Discusión de resultados
Debido a la alta resistencia estructural que implica cumplir con los requisitos que establecen las NTC-DS-2023 relacionados con el nivel de desempeño de Ocupación Inmediata, la incursión de las estructuras estudiadas en el intervalo no lineal resulta limitada, como se puede ver en la función de probabilidad acumulada de la distorsión máxima de entrepiso que se muestra en la figura 14a. Como consecuencia, los costos asociados a las reparaciones y a las personas lesionadas no aportan significativamente al costo total esperado. Por lo anterior, el costo inicial y el costo por daño en contenidos son los que más influyen en el costo total esperado.
El costo asociado al daño en contenidos depende principalmente de la aceleración de piso, la cual está determinada por el contenido de frecuencias del movimiento sísmico y de las características dinámicas del edificio. Por ejemplo, los resultados de los análisis indicaron que la estructura E-1, con un periodo fundamental de vibración más próximo a las máximas demandas sísmicas, experimenta mayores aceleraciones que la estructura E-3, cuyo periodo se encuentra más alejado de dichas demandas. La diferencia en la respuesta dinámica da lugar a que la estructura E-3 presente menos daños en los contenidos.
En la figura 16 se observa que la estructura con menor costo total esperado es la E-3, diseñada para un valor tolerable δ O I igual a 0.01. Este es mayor que el que recomienda la NTC-DS-2023, lo que sugiere la necesidad de realizar un estudio más amplio orientado a optimizar los valores de distorsión máxima de entrepiso límite que se especifican en la normativa actual para estructuras importantes.
CONCLUSIONES
A partir del análisis del costo total esperado durante el ciclo de vida de una estructura escolar, evaluado para diferentes límites de distorsiones máximas de entrepiso que cumplen con el nivel de Ocupación Inmediata, se obtienen las siguientes conclusiones:
1. Las pérdidas económicas por reparaciones y lesiones personales tienen un impacto limitado en el costo total esperado, debido a la reducida incursión de las estructuras en el intervalo de comportamiento no lineal.
2. El incremento en la distorsión máxima de entrepiso de diseño dio lugar, en el presente estudio, a periodos estructurales más alejados del periodo fundamental del suelo, lo que redujo las aceleraciones de piso demandadas
3. Para el caso estudiado, la distorsión máxima de entrepiso permisible óptima resultó igual a 0.01 (valor que corresponde al mínimo costo total esperado), que es 33 % mayor al valor especificado en la NTC-DS-2023.
Se recomienda que las futuras líneas de investigación sobre este tema aborden los siguientes aspectos: a) la expansión del análisis a edificaciones con diferentes características geométricas, así como distintos tipos de uso, con el fin de evaluar de qué manera los requerimientos específicos influyen en los parámetros óptimos de diseño; b) la extensión del estudio a estructuras ubicadas en distintos tipos de suelo de la Ciudad de México, considerando la variabilidad en las condiciones geotécnicas y niveles de peligro sísmico; y c) el análisis de edificios con sistemas estructurales con control de daño (con disipadores de energía, aislamiento sísmico, osciladores de masas resonantes, etc.), así como el estudios de sistemas estructurales mixtos.
AGRADECIMIENTOS
El primer autor agradece a la Secretaría de Ciencia, Humanidades, Tecnología e Innovación (SECIHTI) por la beca otorgada durante sus estudios de doctorado. Se agradece al ISCDF por el financiamiento proporcionado dentro del convenio ISCDF/CEC-04/2025-18, así como a la DGAPA el apoyo otorgado dentro del proyecto PAPIIT-IN100423. Así mismo, se agradece al Centro de Instrumentación y Registro Sísmico, A. C. (CIRES) por proporcionar los registros sísmicos empleados, y a la Unidad de Servicios de Información del Instituto de Ingeniería de la UNAM, por su apoyo en la localización de literatura.
REFERENCIAS
Alamilla, J. L., Rodríguez, J. A., y Vai, R. (2020). Unification of different approaches to probabilistic seismic hazard analysis. Bulletin of the Seismological Society of America, 110(6), 2816-2827. https://doi.org/10.1785/0120200148
Alamilla, J., y Tolentino, D. (2018). Optimun design and damage control for load sequences. Structural Safety, 72, 54-64. https://doi.org/10.1016/j.strusafe.2017.12.006
American Society of Civil Engineers. (2021). Minimum design loads and associated criteria for buildings and other structures.
Anelli, A., Santa-Cruz, S., Vona, M., Tarque, N., y Laterza, M. (2018). A proactive and resilient seismic risk mitigation strategy for existing school buildings. Structure and Infrastructure Engineering, 15(2), 137-151. https://doi.org/10.1080/15732479.2018.1527373
Baker, J. W., y Cornell, C. A. (2005). A vector-valued ground motion intensity measure consisting of spectral acceleration and epsilon. Earthquake Engineering & Structural Dynamics, 34(10), 1193-1217. https://doi.org/10.1002/eqe.474
Bojórquez, E., Iervolino, I., Reyes-Salazar, A., y Ruiz, S. (2012). Comparing vector-valued intensity measures for fragility analysis of steel frames in the case of narrow-band ground motions. Engineering Structures, 45, 472-480. https://doi.org/10.1016/j.engstruct.2012.07.002
Bojórquez, E., Leyva, H., Reyes-Salazar, A., Fernández, E., Bojórquez, J., Leal, J., y Serrano, J. (2018). Diseño óptimo multiobjetivo de edificios de concreto reforzado usando algoritmos genéticos. Revista Ingeniería Sísmica (99). https://doi.org/10.18867/ris.99.484
Bojórquez, J., Ruiz, S. E., Ellingwood, B., Reyes-Salazar, A., y Bojórquez, E. (2017). Reliability-based optimal load factors for seismic design of buildings. Engineering Structures, 151(15), 527-539.
Chen, H., Xie, Q., Lan, R., Li, Z., Xu, C., y Yu, S. (2015). Seismic damage to schools subjected to Nepal earthquakes. Natural Hazards, 88(1), 247-284. https://doi.org/10.1007/s11069-017-2865-8
De León, D. (1996). Integrating socio-economics in the development of criteria for the aseismic design of reinforced concrete structures. Ph. D. Thesis, University of California, Departament of Civil and Envionmental Engineering, Irvine California.
De León, D., y Donaji, A. (2020). Towards a resilient design and retrofit of schools in Mexico. The 17th Wolrd Conference on Earthquake Engineering. Sendai, Japón.
De León, D., y Garcia-Manjarrez, J. (2021). Cost and reliability of retrofit alternatives for schools located on seismic zones. Earthquakes and Structures, 21(5), 505-514. https://doi.org/10.12989/eas.2021.21.5.505
De León, D., Ang, A., y Guadarrama, D. (2023). Reliability-based selection of retrofit works for schools under seismic hazard. Natural Hazards Review, 24(3). https://doi.org/10.1061/NHREFO.NHENG-1408
Di Ludovico, M., Digrisolo, A., Moroni, C., Graziotti, F., Manfredi, V., Prota, A., Manfredi, G. (2019). Remarks on damage and response of school buildings after the Central Italy earthquake sequence. Bulletin of Earthquake Engineering, 17(10), 5679-5700. https://doi.org/10.1007/s10518-018-0332-x
Di Ludovico, M., Santoro, A., De Martino, G., Moroni, C., Prota, A., Dolce, M., y Manfredi, G. (2019). Cumulative damage to school buildings following the 2016 central Italy earthquake sequence. Bolletino di Geofisica Teorica ed Applicata, 60(2), 165-182.
Dong, G., Hajirasouliha, I., Pilakoutas, K., y Asadi, P. (2023). Multi-level performance-based seismic design optimisation of RC frames. Engineering Structures, 293 , 116591. https://doi.org/10.1016/j.engstruct.2023.116591
Esteva, L. (1968). Bases para la formulación de decisiones de diseño sísmico. Tesis doctoral, Universidad Nacional Autónoma de México, Ciudad de México.
Esteva, L., Díaz, O., García-Pérez, J., Sierra, G., y Ismael, E. (2002). Life-cycle optimization in the establishment of performance-acceptance parameters for seismic design. Structural Safety, 24(2-4), 187-204. https://doi.org/10.1016/S0167-4730(02)00024-3
Gaceta de la Ciudad de la Ciudad de México. (2023). Normas Técnicas Complementarias para Diseño por Sismo. https://doi.org/10.1061/9780784415788
Gaceta Oficial de la Ciudad de México. (2020). Normas Técnicas Complementarias para Diseño por Sismo 2020.
Gaceta Oficial de la Ciudad de México. (2023). Norma Técnica Complementaria para Diseño y Construcción de Estructuras de Concreto.
García-Pérez, J., y Riaño, R. (2016). Optimum seismic zoning using an artificial neural network. Earthquake Spectra, 32(32), 1187-1207. https://doi.org/10.1193/070114eqs092m
García-Pérez, J., Castellanos, F., y Díaz, O. (2005). Occupancy importance factor in earthquake engineering. Engineering Structures, 27(11), 1625-1632. https://doi.org/10.1016/j.engstruct.2005.05.017
Goda, K., y Hong, H. (2006). Optimal seismic design for limited planning time horizon with detailed seismic hazard information. Structural Safety, 28(3), 247-260. https://doi.org/10.1016/j.strusafe.2005.08.001
Hasofer, A. (1973). Design for infrequent overloads. Earthquake Engineering & Structural Dynamics, 2(4), 387-388. https://doi.org/10.1002/eqe.4290020408
Hosseini Varzandeh, S., y Mahsuli, M. (2023). Codified robust optimal design base shear of structures: Methodology and application to reinforced concrete buildings. Soil Dynamics and Earthquake Engineering, 174. https://doi.org/10.1016/j.soildyn.2023.108200
Hutchinson, T. C., y Chaudhuri, S. R. (2006). Simplified expression for seismic fragility estimation of sliding-dominated equipment and contents. Earthquake Spectra, 22(3), 709-732. https://doi.org/10.1193/1.2220637
INIFED. (2016). Diseño arquitectónico: Educación básica - primaria. Criterios normativos, Ciudad de México.
Jaimes, M., y Niño, M. (2017). Cost-benefit analysis to assess seismic mitigation options in Mexican public school buildings. Bulletin of Earthquake Engineering, 15, 3919-3942. https://doi.org/10.1007/s10518-017-0119-5
Jaimes, M., y Reinoso, E. (2013). Estimación de pérdidas por sismo de contenidos de edificios. Series del Insituto de Ingeniería, Instituto de Ingeniería UNAM.
Jaimes, M., Reinoso, E., y Esteva, L. (2013). Seismic vulnerability of building contents for a given occupancy due to multiple failure modes. Journal of Earthquake Engineering, 17(5). https://doi.org/10.1080/13632469.2013.771588
Kaveh, A., Fahimi-Farzam, M., y Kalateh-Ahani, M. (2015). Performance-based multi-objective optimal design of steel frame structures: nonlinear dynamic procedure. Scientia Iranica, 22(2), 373-387.
Koohfallah, K., Dehkordi, M., D'Ayala, D., Ghodrati Amiri, G., Eghbali, M., y Samadian, D. (2024). Seismic resilience of typical steel school building and retrofitting options based on FEMA P-58 under mainshock-aftershock effects. Journal of Building Engineering, 86(108636). https://doi.org/10.1016/j.jobe.2024.108636
Liu, H., Huang, Y., y Liu, X. (2023). Seismic overturning fragility analysis for rigid blocks subjected to floor motions. Sustainability, 15(6). https://doi.org/10.3390/su15064945
Liu, H., Huang, Y., y Qu, Z. (2022). A discretely damped SDOF model for the rocking response of freestanding blocks. Earthquake Engineering and Engineering Vibratio, 21, 729-740. https://doi.org/10.1007/s11803-022-2085-4
Liu, S.-C., Dougherty, M., y Neghabat, F. (1976). Optimal aseismic design of building and equipment. Journal of the Engineering Mechanics Division, 102(3). https://doi.org/10.1061/JMCEA3.0002121
Lu, W., Zhan, X., Qiu, H., y Wu, Y. (2023). Numerical modelling strategies for column rocking behavior in traditional timber structures. International Journal of Architectural Heritage, 18(10), 1535-1550. https://doi.org/10.1080/15583058.2023.2242807
Mazzoni, S., Fenves, G., y Scott, M. (2006). OpenSees command language manual. University of California, Berkeley.
McKenna, F., Fenves, G., y Scott, M. (2000). Open system for earthquake engineering simulation. University of California, Berkeley.
NIST/ATC. (2017). Guidelines for nonlinear structural analysis for design of buildings Part IIb Reinforced Concrete Moment Frames. https://doi.org/10.6028/NIST.GCR.17-917-46v3
Ordaz, M., Salgado-Gálvez, M., Pérez-Rocha, L., Cardona, O., y Mena-Hernández, U. (2017). Optimum earthquake design coefficients based on probabilistic seismic hazard analyses: theory and applications. Earthquake Spectra, 33(4), 1455-1474. https://doi.org/10.1193/110116eqs189m
Orellana, M., Ruiz, S., Bojórquez, J., Reyes-Salazar, A., y Bojórquez, E. (2021). Optimal load factors for earthquake-resistant design of buildings located at different types of soils. Journal of Building Engineering, 34(102026). https://doi.org/10.1016/j.jobe.2020.102026
Park, S., y Kwon, J. H. (2003). Optimal drift design model for multi-story buildings subjected to dynamic lateral forces. The Structural Design of Tall and Special Buildings, 12(4), 317-333. https://doi.org/10.1002/tal.224
Rackwitz, R. (2000). Optimization - the basis of code-making and reliability verification. Structural Safety, 22(1), 27-60. https://doi.org/10.1016/S0167-4730(99)00037-5
Reinoso, E., Jaimes, M., y Esteva, L. (2010). Seismic vulnerability of an inventory of overturning objects. Journal of Earthquake Engineering, 14(7), 1008-1021. https://doi.org/10.1080/13632460903527971
Rodríguez, A., Ruiz, S., Bojórquez, E., y Reyes-Salazar, A. (2020). Influence of spectral acceleration correlation models on conditional mean spectra and probabilistic seismic hazard analysis. Earthquake Engineering & Structural Dynamics, 50(2), 309-328.
Rosenblueth, E. (1976). Optimum design for infrequent disturbances. Journal of the Structural Division, 102(9), 1807-1825. https://doi.org/10.1061/JSDEAG.0004431
Rosenblueth, E., y Mendoza, E. (1971). Reliability optimization in isostatic structures. Journal of the Engineering Mechanics Division, 97(6), 1625-1642. https://doi.org/10.1061/JMCEA3.0001521
Rubinstein, R. Y., y Kroese, D. P. (1981). Simulation and the Monte Carlo Method. New York: John Wiley & Sons, Inc.
Singh, S., Mena, E., Castro, R., y Carmona, C. (1987). Empirical prediction of ground motion in Mexico City from coastal earthquakes. Bulletin of the Seismological Society of America, 77(5), 1862-1867. https://doi.org/10.1785/BSSA0770051862
Singh, S., Reinoso, E., Arroyo, D., Ordaz, M., Cruz-Atienza, V., Pérez-Campos, X., Hjörleifsdóttir, V. (2018). Deadly intraslab Mexico earthquake of 19 September 2017 (Mw 7.1): Ground motion and damage pattern in Mexico City. Seismological Research Letters, 89(6), 2193-2203. https://doi.org/10.1785/0220180159
The European Union per Regulation 305/2011. (2004). Eurocode 8: Design of structures for earthquake resistance - Part I: General rules, seismic actions and rules for buildings.
Tolentino, D., y Ruiz, S. (2015). Time-dependent confidence factor for structures with cumulative damage. Earthquake Spectra, 31(1), 441-461. https://doi.org/10.1193/010912EQS008M
Vamvatsikos, D., y Cornell, C. A. (2011). Incremental dynamic analysis. Earthquake Engineering & Structural Dynamics, 31(3), 491-514. https://doi.org/10.1002/eqe.141
Zain, M., Dackermann, U., y Prasittisopin, L. (2024). Machine learning (ML) algorithms for seismic vulnerability assessment of school buildings in high-intensity seismic zones. Structures, 70. https://doi.org/10.1016/j.istruc.2024.107639
Zou, X.-K., y Chan, C.-M. (2005). An optimal resizing technique for seismic drift design of concrete buildings subjected to response spectrum and time history loadings. Computers & Structures, 83(19-20), 1689-1704. https://doi.org/10.1016/j.compstruc.2004.10.002
Zou, X.-K., y Chan, C.-M. (2005). Optimal seismic performance-based design of reinforced concrete buildings using nonlinear pushover analysis. Engineering Structures, 27(8), 1289-1302. https://doi.org/10.1016/j.engstruct.2005.04.001
Notas
1 Se aceptarán comentarios y/o discusiones hasta cinco meses después de su publicación.
Notas de autor
*Autora para correspondencia: SruizG@iingen.unam.mx
cygnusmind